49 Dartmouth Street, Unit 2
inception-app-prod/MzM1ZjE5ZjktZjExNC00ZWQ3LWIwNjctYTMzYjhlMTVkNmRl/content/2025/02/10a0bf90229bd8e86a8db876f6b8465b35dac4b8.jpg

 

 

49 Dartmouth Street, Unit 2

SOMERVILLE, MA

 $1,000,000

 





Property Details

6 Rooms

3 Bedrooms

2 Baths

1,605 sf Int

Welcome to 49 Dartmouth Street, a spacious 2-level penthouse nestled between Magoun Square and Winter Hill with 2 private decks and 2+ car parking! As you step inside, you are greeted by high ceilings, gleaming oak floors, and an abundance of light. Large, bright living room, modern spacious eat-in kitchen, newly refreshed bathrooms, top floor family room/home office, a covered deck by the kitchen AND a gorgeous roof deck offering sky-high views that will leave you breathless. Skylights sprinkle natural light on the top floor, giving the home a warm glow. The central air system and mini splits ensures comfort in every season, laundry in-unit maximizes convenience, while off-street parking simplifies your urban lifestyle. The basement and outside shed provide extra storage, while the shared yard space offers outdoor space for relaxation and gardening. Located near Foss Park, the Community bike path, Green Line stations, shops, restaurants, and nightlife. Easy access to Route 93, Harvard, MIT, Tufts, Kendall Square, and Logan Airport. This one won’t last!

Gallery

Details

Interior

• Enter this lovely condo through a shared front door on the covered front porch, and you will land in the common foyer with a stairway leading up to your unit door.

• The entry area leads you to the spacious living room with 4 large windows, beautiful hardwood floors, tall ceiling and a modern drum light.

• Two ample-sized bedrooms to the right of the living room are framed with large windows, hardwood floors and modern ceiling light fixtures. Note that the front bedroom doesn’t have a closet.

• Enjoy a meal with friends and family in the spacious kitchen/dining area, accented by a large sliding glass door to the covered deck, and hardwood floors.

• Cooks will delight in this large kitchen, featuring plentiful maple shaker-style cabinets with brushed nickel hardware, granite countertops, recessed lights and under cabinet lights. Center island with 2 stylish pendants sits 3 comfortably. KitchenAid stainless steel appliances include a refrigerator with an icemaker, a 4-burner gas range with convection, a dishwasher with hidden controls, and a microwave with an exterior vent. There is a stainless-steel sink with a faucet and separate sprayer, a Delta water filter, and a new disposal (2025). The large glass sliding door leads to a lovely covered deck, perfect for al fresco dining!

• A modern full bath finishes this entertaining level. Equipped with a new wood-toned single vanity, stylish oval mirror, modern vanity light fixture, a flush ceiling mount light/vent fan fixture, a combination tub and shower, and a black and white porcelain tile floor.

• An interior staircase from the kitchen leads to the 3rd floor living space with a jaw dropping 300 sf private deck. You are immediately greeted by a blinding amount of natural light provided by 6 large windows spanning three walls, a glass door leading to the roof deck, and 2 skylights above.

• The bonus, flexible space is a true luxury! This large space is perfect for a second living room, an art studio, a gym, a home office, or whatever your heart desires! Across from this large bonus space, you will find the 2nd full bath, and the laundry closet with side-by-side Bosch front-loading washing machine and gas dryer.

• The primary bedroom is located on the front with an expansive cathedral ceiling, a skylight, 2 large windows, a large closet and a stylish combination ceiling fan and light.

• The 2nd full bath is also newly refreshed, next to the primary bedroom, with new black and white porcelain tile flooring, a new wooden vanity, new oval mirror, and a new stylish vanity light. It’s equipped with a large soaking jetted tub/shower combo with white tile surround, an additional walk-in shower with a glass door, and open shelving for storage.

• Views!!!! Step out to the roof deck through the glass door and you are greeted by unobstructed views of Somerville and beyond! This large deck with long-lasting synthetic decking and electricity is well equipped to handle an urban garden, a dinner party, and so much more. Enjoying the sunsets after a tiring work day will never get old!

Systems & Basement

Heating & Cooling: Gas-fired Whirlpool forced hot air furnace with central air is controlled by the Honeywell programmable thermostat. Two additional Energy Knight mini splits provide supplemental heating and cooling if needed (Note that the current Owner did not use them).

Hot water: AO Smith ProLine XE 40 gallon gas-fired water tank (2020).

• Electrical: 100 amps through circuit breakers. 

Laundry: Side-by-side Bosch washing machine and gas dryer are located in the laundry closet on the top floor close to the primary bedroom. 

There is storage in the basement as well as the water heater.

Exterior & Property

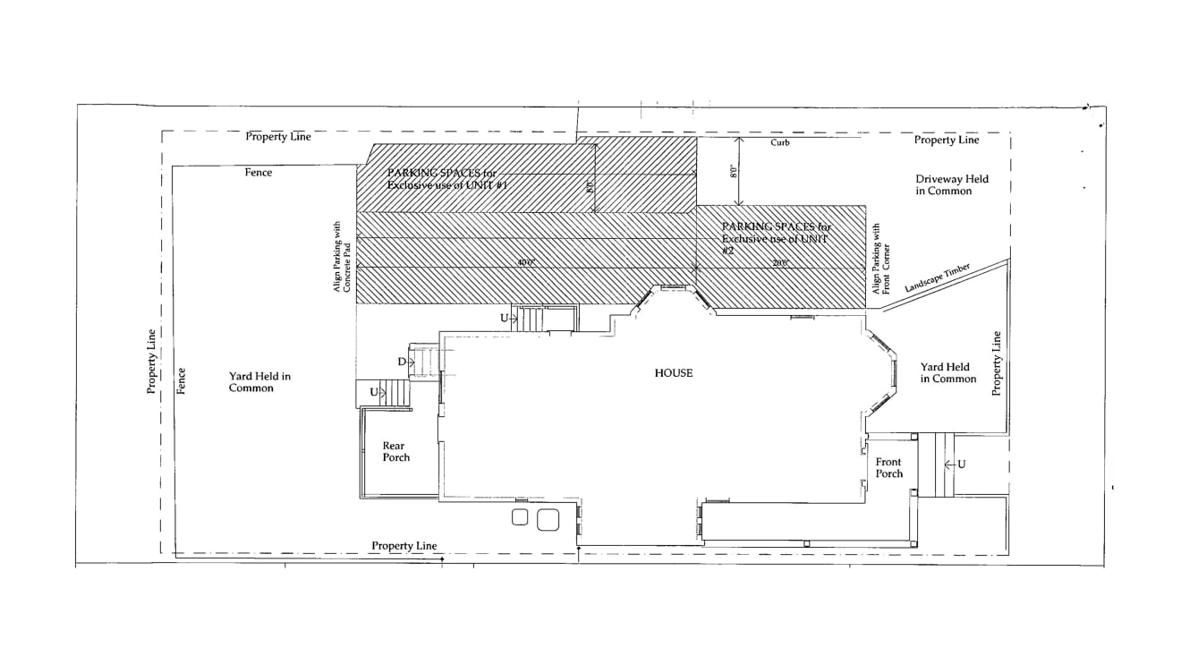
Parking: 2+ car off street parking in driveway (left side belongs to this condo).

Windows: Double-pane Certainteed and Andersen insulated windows.

Exterior: Painted cement siding and asbestos.

Roof: Asphalt Shingle for main roof (2005) and rubber below the decks. The roof below the deck off of the kitchen was replaced in 2021.

Outside space: Private roof deck, private covered side deck, shared front porch and shared front, side, and back yard.

Shed: Shared storage for both units.

Association & Financial Information

• 2-unit association, both are owner-occupied 

• The beneficial interest for this unit is 55%. 

Condo Fee: $330/month. Water & Sewer, Master Insurance, Common Electricity, Common Area Maintenance, and Capital Reserve, as of February 2025.

Account: The association currently has $2,563 in the condo account (as of February 2025 ).

Taxes: $4,308.30, FY25 with Residential Exemption.

Pets: Pet-friendly with a maximum of 2 pets, neither of which can be over 70 pounds.

Rentals: Leases must be for at least 12 months.

Additional Information

• Utilities - Gas:$108/mo, per National Grid;Electric: $212/mo per EverSource.

• The association just rebuilt the 2 retaining walls - one on the right side and one in the rear, and the Seller is paying the assessment at closing.

Floor Plan & Site Plan

Condo Docs

Click the button below to view and download the condo documents.

Location

Use the map to see the exact location of the listing and explore nearby points of interest.
inception-app-prod/MzM1ZjE5ZjktZjExNC00ZWQ3LWIwNjctYTMzYjhlMTVkNmRl/content/2025/02/91881f4053652582a3b2d77cc864a0d8ead847e4.jpg

 

Showing Information

 

Thursday, March 6th

11:00 AM - 12:30 PM

Saturday, March 8th

12:30 PM - 2:00 PM

Sunday, March 9th

12:30 PM - 2:00 PM

 

If these times are not convenient, please call/text Mona Chen (781-915-7267) or Lisa Drapkin (617-930-1288) to make an appointment.


Contact

Got Questions?

Send
Submitting
Success! Your message was sent!
Oops! Error occurred.